Listing Tools

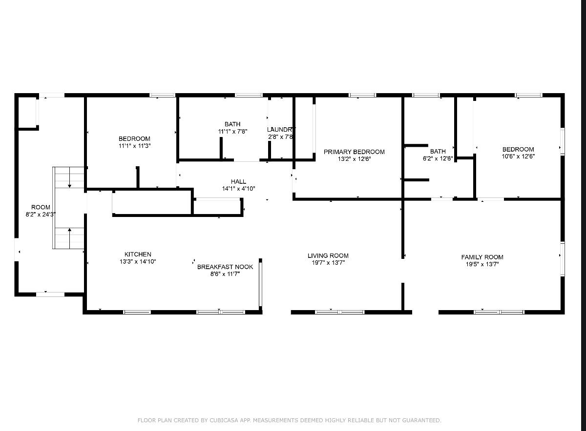
This beautiful, well-maintained 3-bedroom, 2-bathroom ranch with attached garage and entry is ready for its new family. Inside you will find an eat-in kitchen, large living room, 2 bedrooms and full bath. On the far side of the living room features a sizable family room, kitchenette area, bedroom, and a full bathroom, perfect for guests, in-laws, or even your own master suite. Situated on a 2-acre lot, you will also find a 48x50 mechanics garage with a 14-foot door-perfect for starting your own business and ample space to grow an existing one. There is also great potential for heated storage to off set your mortgage. The home provides abundant natural light giving you a very comfortable feel. The large basement has a small office and plenty of space for storage or exercise equipment, as well as another garage door to pull a vehicle or your toys in! This home provides easy living to include an on-demand generator, hardwood floors, metal roof, as well as hot water baseboard heat and a combined pellet furnace which can be changed back and forth with a switch giving you comfort during the winter months. The open yard provides plenty of room with a fenced in area in the back for children, animals or a pool. The mechanics garage is set over enough to keep the two separate and provides a large yard big enough for heavy equipment. Skowhegan is just 15 minutes away with shopping opportunities, the Kennebec River, and Lake George for swimming, boating, hiking, and more. Don't miss out on this move-in ready, versatile property in Harmony, ME!

Property Details of 92 Athens Road

Property Details

Interior Features

Exterior Features

Utilities and Appliances

Other Details

Map Location

Driving Directions

Listing data is derived in whole or in part from the Maine IDX & is for consumers' personal, non commercial use only. Dimensions are approximate and not guaranteed. All data should be independently verified. ©2026 Maine Real Estate Information System, Inc. All Rights Reserved. equal opportunity housing logo   Privacy Policy

David Bruce participates in ©2026 Maine Listings Internet Data Exchange program, allowing us to display other Maine IDX Participants' listings. This website does not display complete listings. Certain listings of other real estate brokerage firms have been excluded. Mortgage figures are estimates. Check with your bank or proposed mortgage company for actual interest rates. This product uses the FRED® API but is not endorsed or certified by the Federal Reserve Bank of St. Louis.

Hi there! How can we help you?

Contact us using the form below or give us a call.

Send Us A Message:

I agree to receive marketing and customer service calls and text messages from David Bruce. To opt out, you can reply 'stop' at any time or click the unsubscribe link in the emails. Consent is not a condition of purchase. Msg/data rates may apply. Msg frequency varies. Privacy Policy.

Do not fill in this field:

This site is protected by reCAPTCHA and the Google Privacy Policy and Terms of Service apply.