Listing Tools

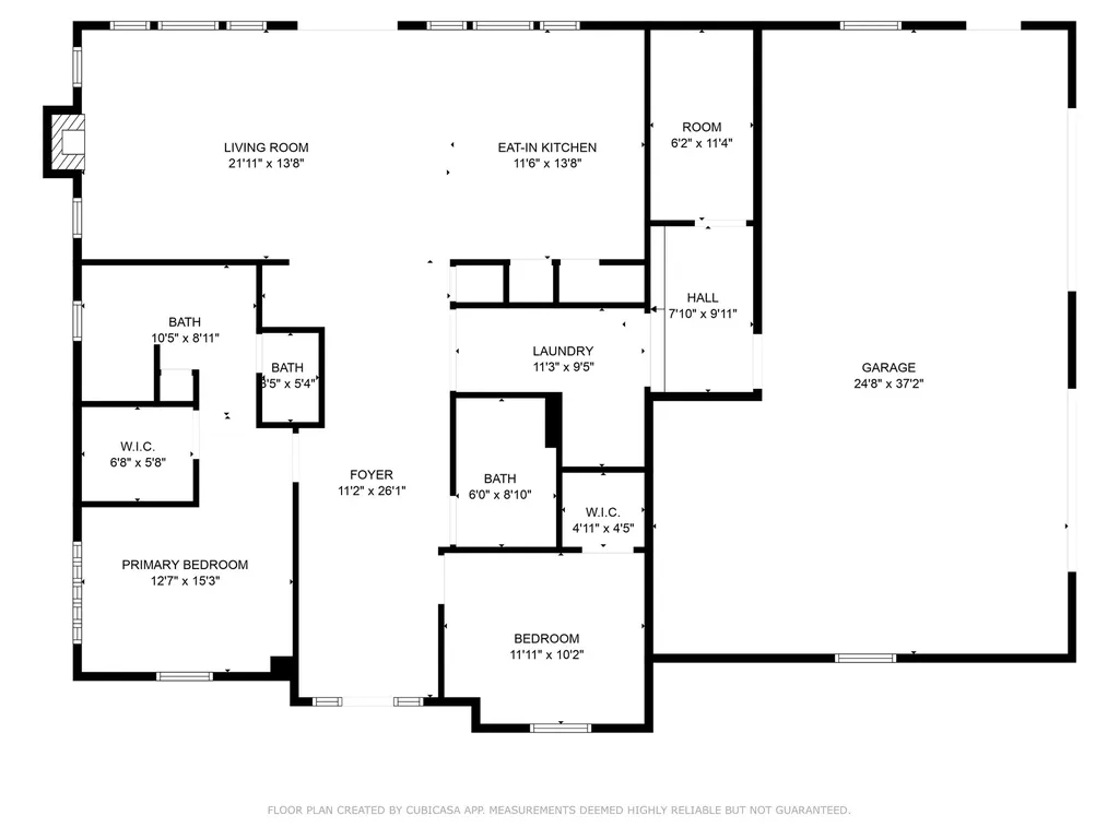
Custom Craftsman-Style Ranch on 2.13 acres in the heart of Western Maine's mountains and lakes region, this 2020-built home combines timeless design with modern efficiency. With direct access to the Mountain Division Trail and an extensive snowmobile trail network, it's the perfect blend of outdoor adventure and peaceful rural living. Highlights & Features: 1. Open-concept living area with a cozy gas fireplace and abundant natural light 2. Gourmet kitchen with granite countertops, stainless steel appliances, and generous cabinetry 3. Stylish, low-maintenance porcelain tile flooring throughout 4. Energy-efficient radiant heat for year-round comfort 5. Spacious two-car heated garage with additional storage above 6. Backyard retreat featuring an above-ground pool and hot tub-ideal for summer fun and year-round relaxation. OPEN HOUSE: Sat. Sept. 13 from 11 am - 1 pm.

Property Details of 6 Hattie Pike Road

Property Details

Interior Features

Exterior Features

Utilities and Appliances

Other Details

Map Location

Driving Directions

Broker Reciprocity 

Copyright 2025 PrimeMLS, Inc. All rights reserved. This information is deemed reliable, but not guaranteed. The data relating to real estate displayed on this display comes in part from the IDX Program of PrimeMLS. The information being provided is for consumers’ personal, non-commercial use and may not be used for any purpose other than to identify prospective properties consumers may be interested in purchasing. Data last updated November 17, 2025 8:54 AM EST

 

Hi there! How can we help you?

Contact us using the form below or give us a call.

Send Us A Message:

I agree to receive marketing and customer service calls and text messages from David Bruce. To opt out, you can reply 'stop' at any time or click the unsubscribe link in the emails. Consent is not a condition of purchase. Msg/data rates may apply. Msg frequency varies. Privacy Policy.

Do not fill in this field:

This site is protected by reCAPTCHA and the Google Privacy Policy and Terms of Service apply.