Listing Tools

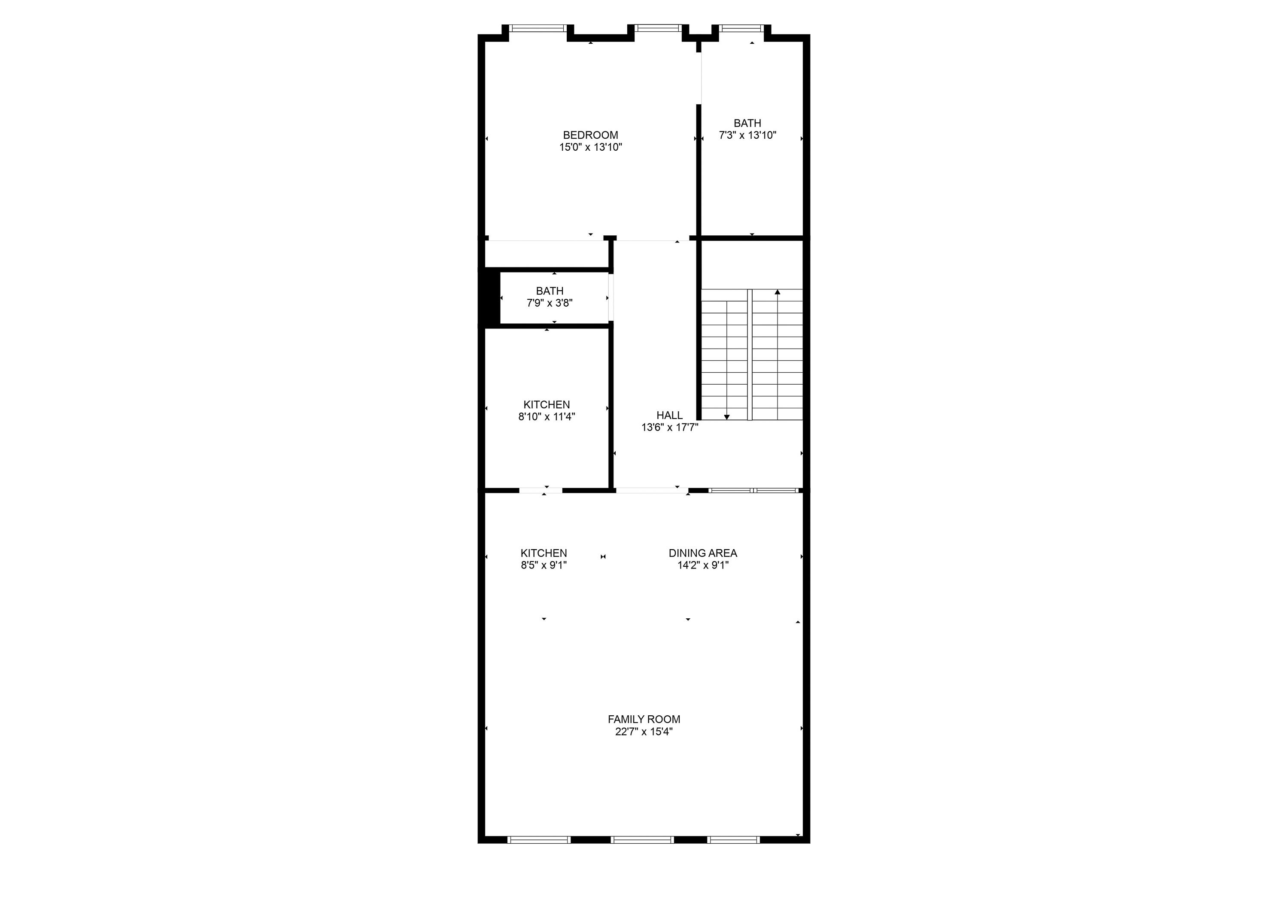
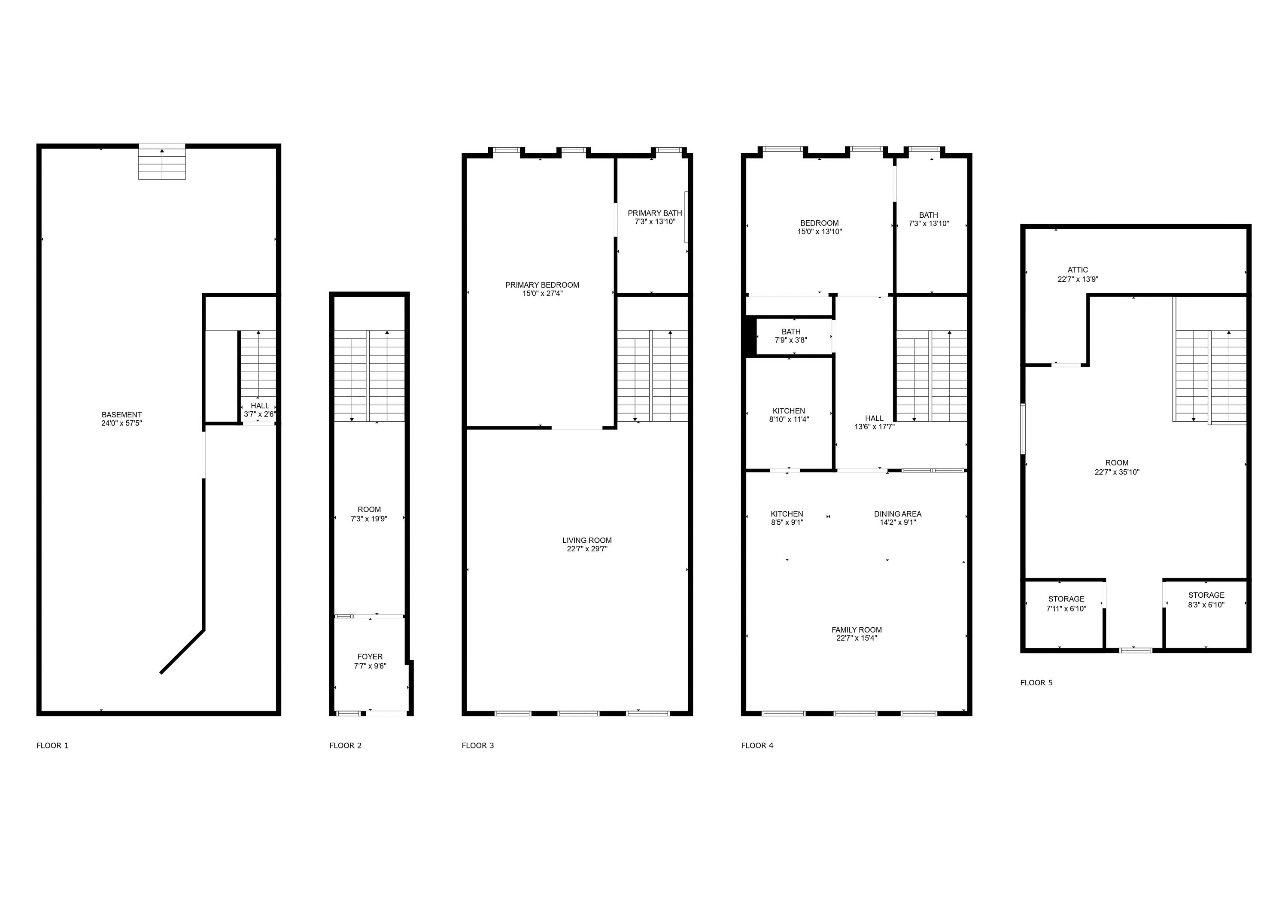
Step into a one-of-a-kind opportunity with this stunning commercial-to-residential conversion, where old-world charm meets modern European craftsmanship. This fully renovated property blends functionality and elegance, featuring a street-level storefront ideal for a boutique, gallery, or private studio, the space is currently rented to a successful hair salon-while the main residence offers sophisticated living with a distinct European flair. Every detail has been thoughtfully curated and upgraded to meet European standards for energy efficiency, from premium European windows and insulation to high-end fixtures, plumbing, and flooring throughout. The galley-style kitchen is both sleek and practical, designed for effortless cooking and entertaining. The residence is filled with natural light, creating a bright, airy, and open feel that enhances the timeless finishes and thoughtful layout. Furnishings are included, offering a turnkey lifestyle or investment opportunity. The walk ability to all that downtown Gardiner has to offer and to the Kennebec River and rail trail. Only 45 mins to Portland and 2.5 hours to Boston. Whether you're an entrepreneur seeking live/work convenience or a buyer looking for a unique and energy-efficient home, this property is not to be missed.

Property Details of 223 Water Street

Property Details

Interior Features

Exterior Features

Utilities and Appliances

Other Details

Map Location

Driving Directions

Listing data is derived in whole or in part from the Maine IDX & is for consumers' personal, non commercial use only. Dimensions are approximate and not guaranteed. All data should be independently verified. ©2026 Maine Real Estate Information System, Inc. All Rights Reserved. equal opportunity housing logo   Privacy Policy

David Bruce participates in ©2026 Maine Listings Internet Data Exchange program, allowing us to display other Maine IDX Participants' listings. This website does not display complete listings. Certain listings of other real estate brokerage firms have been excluded. Mortgage figures are estimates. Check with your bank or proposed mortgage company for actual interest rates. This product uses the FRED® API but is not endorsed or certified by the Federal Reserve Bank of St. Louis.

Hi there! How can we help you?

Contact us using the form below or give us a call.

Send Us A Message:

I agree to receive marketing and customer service calls and text messages from David Bruce. To opt out, you can reply 'stop' at any time or click the unsubscribe link in the emails. Consent is not a condition of purchase. Msg/data rates may apply. Msg frequency varies. Privacy Policy.

Do not fill in this field:

This site is protected by reCAPTCHA and the Google Privacy Policy and Terms of Service apply.